RB-F

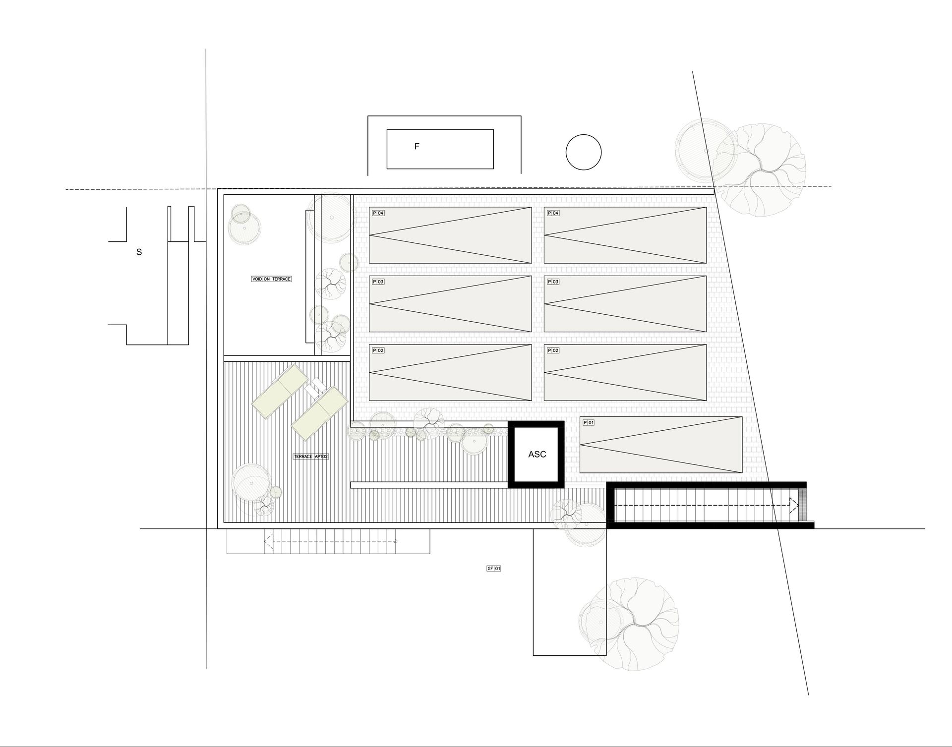
Location: Mzaar Ski Resort, Farya

Plot Area: 525 sqm

Built Up Area: 800 sqm

Project Year: 2022

Work: Concept & Design

Program: Residential Chalets Building



about this project

This project has been carefully crafted to seamlessly integrate with the steep slope of the land. It showcases a blend of simple materials and clean lines, creating a harmonious geometry. The roofs elegantly merge with the road at the same level, establishing a flawless connection with the surrounding mountains. This design ensures an unobstructed and breathtaking view from every angle.